Skip to Content

Zariadenie sociálnych služieb Egidius

Adresa: Ťačevská , Bardejov, okres Bardejov (08501)

Krajina: Slovensko

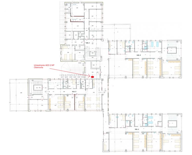
miesto: Na skrini v ošetrovni

Dostupnosť: Nepretržite — Po-Ne, 00:00-24:00

Zariadenie: Zoll — Zoll AED Plus

Obrázok AED
ID dokumentu: 394
Obrázok AED
ID dokumentu: 370
súradnice: 49.284466 , 21.266027
Otvoriť v Mapách Google